
practice profile
residential
commercial
nursing home
child care centre
apartments & retail
restaurant
information
home page
winkens architecture
whitestown, drinagh
wexford, Ireland
t. +353(0)53 9126605
e.
|
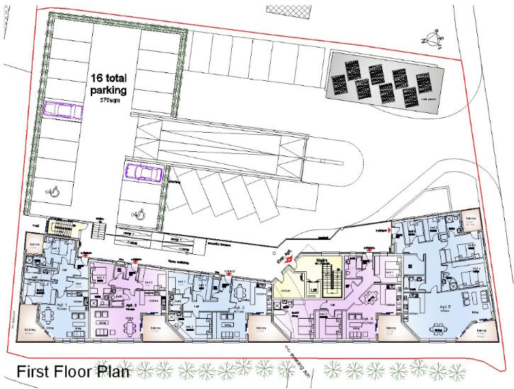
mixed development apartments & retail
seapoint house rosslare
This mixed use building has 11 apartments and 5 shop units on 4 floors.
The site has road frontage on two sides.
Parking will be on two levels, shop and apartments seperated.
click thumbnail to see full drawing
click right side of drawing for next drawing
click left side of drawing for previous
drawing
This site and the contents thereof © 2020 winkens architecture
|